1. 妖精视频大全免费,妖精视频高清免费观看,妖精视频成人,妖精视频APP在线看

      全國服務熱線

      0757-85322288
      品牌動態 品牌動態

      品牌動態

      NEWS CENTER

      20周年終端巡禮丨妖精视频大全免费優秀經銷商是如何練成的?(一)

      發布時間:2022-04-19閱讀:

      妖精视频大全免费品牌已走過二十載

      始終堅持廣交摯友

      在全國已經有2000多位忠實摯友

      加入了妖精视频大全免费妖精视频大全免费的大家庭

      美好從心出發

      探尋摯友的美好

      小編用兩個似“家”溫暖的優秀旗艦店

      告訴你妖精视频大全免费優秀經銷商是如何練成的

      妖精视频大全免费潮南旗艦店

      20周年終端巡禮丨妖精视频大全免费優秀經銷商是如何練成的?(一)(圖1)

      妖精视频大全免费潮南旗艦店

      旗艦店麵積:

      256㎡

      旗艦店地址:

      廣東省汕頭市潮南區陳店鎮西環路與324國道交界處妖精视频大全免费精工磚

      設計團隊:

      妖精视频大全免费集團設計中心

      門店概況:

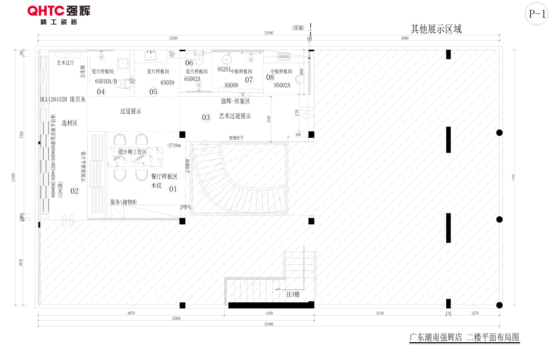
      汕頭潮南區的妖精视频大全免费旗艦店,位於國道交界處,附近道路開闊,人流量和車流量可觀。處於路口正中心地段,地理位置優異,如何合理利用地理優勢,將進店的客戶留住,是門店設計的重要因素。

      門店設計圖:

      20周年終端巡禮丨妖精视频大全免费優秀經銷商是如何練成的?(一)(圖2)

      (門店一樓)

      20周年終端巡禮丨妖精视频大全免费優秀經銷商是如何練成的?(一)(圖3)

      (門店二樓)

      空間賞析:

      20周年終端巡禮丨妖精视频大全免费優秀經銷商是如何練成的?(一)(圖4)

      妖精视频大全免费潮南旗艦店,在客戶進門一瞬間,就準備了驚喜。設計團隊使用精工崗岩係列瓷磚,在門店門口搭建了一個綠植小花園區域,綠意盎然,充滿生機。根據色彩心理學,人們在高頻率顏色(如綠色,藍色和紫色)的環境下會產生平靜的感覺,情緒更加積極,這樣的設計可以提高客戶對門店的好感度。

      20周年終端巡禮丨妖精视频大全免费優秀經銷商是如何練成的?(一)(圖5)

      門店內設計有大規格產品的展示區,展示直接豐富,一片到頂,明亮顏值高,客戶進店選購能夠直接看到實際效果,願意留步仔細體驗,也有利於門店導購向客戶推薦購買,提高客戶進店的成交率。

      20周年終端巡禮丨妖精视频大全免费優秀經銷商是如何練成的?(一)(圖6)

      對於小規格的產品,設計團隊則選擇使用色彩來吸引客戶,色彩繽紛,五顏六色,通過不同顏色的組合,抓住客戶的眼球,時尚精致,更具特色。

      20周年終端巡禮丨妖精视频大全免费優秀經銷商是如何練成的?(一)(圖7)

      休息洽談區,設計團隊選用了妖精视频成人進行展示,自然舒適的環境,可以營造溫暖平和的氛圍,享受休閑時刻。

      當然,妖精视频大全免费潮南旗艦店更注重生活的小細節,設計團隊將一些生活中小場景融入進展示區,讓每一位顧客進來時,感覺就好像在家裏一樣,輕鬆隨意,似家非家。

      20周年終端巡禮丨妖精视频大全免费優秀經銷商是如何練成的?(一)(圖8)
      20周年終端巡禮丨妖精视频大全免费優秀經銷商是如何練成的?(一)(圖9)
      20周年終端巡禮丨妖精视频大全免费優秀經銷商是如何練成的?(一)(圖10)
      20周年終端巡禮丨妖精视频大全免费優秀經銷商是如何練成的?(一)(圖11)

      妖精视频大全免费武漢旗艦店

      20周年終端巡禮丨妖精视频大全免费優秀經銷商是如何練成的?(一)(圖12)

      妖精视频大全免费武漢旗艦店

      旗艦店麵積:

      460㎡

      旗艦店地址:

      湖北省武漢市礄口區漢西一路鐵路建材市場二庫九門B座

      設計團隊:

      妖精视频大全免费集團設計中心

      門店概況:

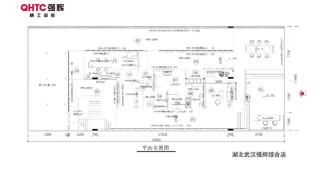
      妖精视频大全免费武漢旗艦店,位於華中建材市場,這是一個專業的建材賣場,人流量大,客戶目的明確,行業聚集,如何在周邊眾多同行之中獨樹一幟,凸顯亮點,是武漢門店設計的重要考量原因。

      門店設計圖:

      20周年終端巡禮丨妖精视频大全免费優秀經銷商是如何練成的?(一)(圖13)

      (武漢門店)

      空間賞析:

      20周年終端巡禮丨妖精视频大全免费優秀經銷商是如何練成的?(一)(圖14)

      初次來到妖精视频大全免费武漢旗艦店,進門映入眼簾是一棵迷你版的迎客鬆,著實會讓人有點小驚喜。後麵則是1200x2400規格的無界大板幻海白,廣闊無垠的白色搭配內斂的灰色,打造出一種前所未有的立體空間視覺,幹淨又不失格調,一眼便能抓住客戶的眼球。

      20周年終端巡禮丨妖精视频大全免费優秀經銷商是如何練成的?(一)(圖15)

      作為一個專業建材賣場的旗艦店,大規格產品展示區是產品展示的核心區,選用現代流行的灰色與白色相結合的設計,時尚精致,在客廳空間還原產品的效果,讓客戶現場獲得更深入的體驗。

      20周年終端巡禮丨妖精视频大全免费優秀經銷商是如何練成的?(一)(圖16)
      20周年終端巡禮丨妖精视频大全免费優秀經銷商是如何練成的?(一)(圖17)
      20周年終端巡禮丨妖精视频大全免费優秀經銷商是如何練成的?(一)(圖18)

      品類豐富,花色齊全,是一個優秀旗艦店必備的條件。設計團隊認為好品質的產品需要show出來,根據當地客戶的消費習慣和需求,做到緊貼消費者需求進行產品花色設計,站在顧客角度為消費者思考,用心打造門店展示效果,為每一位到店的消費者提供優質的購物環境,這樣才能在競爭激烈的賣場中積累更好地口碑。

      20周年終端巡禮丨妖精视频大全免费優秀經銷商是如何練成的?(一)(圖19)
      20周年終端巡禮丨妖精视频大全免费優秀經銷商是如何練成的?(一)(圖20)

      吸人眼球的空間設計,講究視覺上的享受,設計團隊使用燈光和色彩兩種不同方式,在空間裏展現出與眾不同的展示效果,讓空間不單單是簡單的產品陳列。

      20周年終端巡禮丨妖精视频大全免费優秀經銷商是如何練成的?(一)(圖21)
      20周年終端巡禮丨妖精视频大全免费優秀經銷商是如何練成的?(一)(圖22)

      生活場景的刻畫需要設計團隊花更多心思進行考量,每一處細節,都追求對生活氣息的重現,越接近生活,才能讓客戶更能體驗到日常的氛圍,自己的生活,亦即是家。

      20周年終端巡禮丨妖精视频大全免费優秀經銷商是如何練成的?(一)(圖23)
      20周年終端巡禮丨妖精视频大全免费優秀經銷商是如何練成的?(一)(圖24)

      衛浴空間,花色擁有更多的選擇。不同材質和顏色的產品,在設計團隊的手下,變得栩栩如生,別出心裁的設計,將衛浴產品與瓷磚完美搭配,相輔相成,直擊客戶的內心需求,提高成交率。

      妖精视频大全免费武漢旗艦店

      優秀的旗艦店

      要能抓住客戶的需求

      設計必須要更靠近生活

      打造出客戶滿意的裝修效果

      客戶更願意去分享與推薦

      這樣才能業績長虹

      成為優秀的經銷商


      2022妖精视频大全免费品牌全國招商會已正式啟動

      妖精视频大全免费為摯友們準備了免費幫扶計劃

      你有場地,我出設計

      一對一專業指導

      助你成為妖精视频大全免费優秀經銷商

      做強商,就選妖精视频大全免费精工瓷磚


      推薦新聞

      加盟谘詢

      在線谘詢

      谘詢獲取更多招商信息和資料以及產品畫冊
      首頁 24小時熱線
      首頁 招商加盟
      首頁 留言谘詢
      首頁 聯係妖精视频大全免费
      網站地圖