全國服務熱線
0757-85322288NEWS CENTER
發布時間:2023-06-23閱讀:
遇
見
【 妖精视频大全免费嘉興旗艦店】
Aesthetics of home furnishing
----- 藝術生活季-見證家居美學新生 -----
妖精视频大全免费嘉興旗艦店
坐落在江南文化的發源地——浙江嘉興
一城一景,一城一異
每個城市孕育著不同的、
但同樣燦爛的文化
嘉興店帶著妖精视频大全免费品牌不變的品質和服務
為本地建陶市場注入更加多元的文化因子
演繹生活的萬種可能
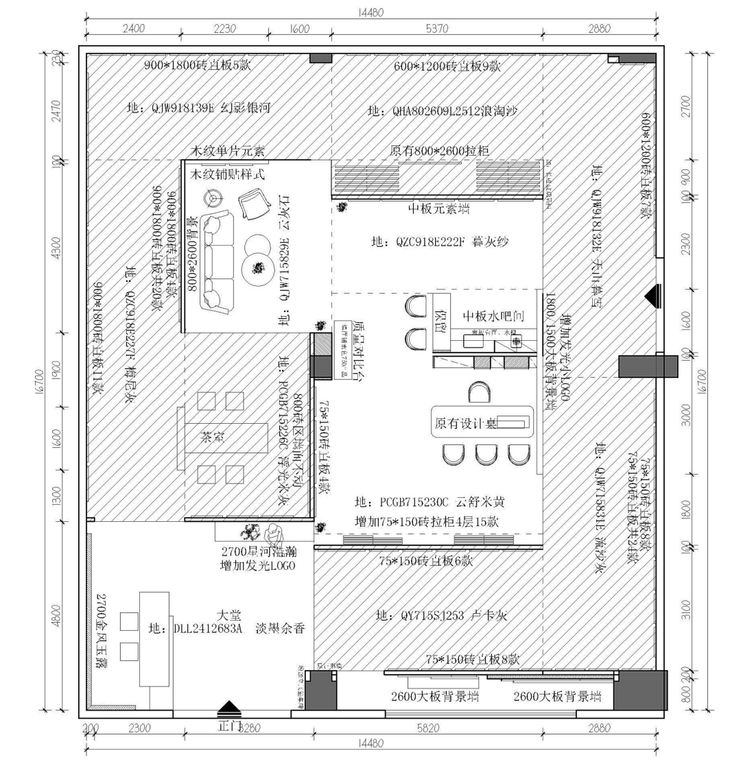
▲嘉興店平麵布置圖
Store Information
門店名稱:妖精视频大全免费浙江嘉興旗艦店
設計麵積:100㎡
完成時間:2023年4月
設計團隊:妖精视频大全免费總部設計部
門店地點:浙江省嘉興市南湖區建材陶瓷市場139號
門店介紹:妖精视频大全免费嘉興旗艦店,設計師巧妙地植入適當的色彩和光感,以用戶體驗為導向,向來者徐徐展開一個個有趣又有品的格調空間。變幻的色彩所帶來的感官變化,正如生活中美麗的意外,帶來無限驚喜。
外立麵采用艾特思岩板係列文化裝飾
個性鮮明,文化效果突出
可以更有效地抓住過客的眼球
進入店內一探究竟
大堂空間的設計是開放和流動的
沒有明確的邊界
卻隱藏著精心設定的交錯關係
進門大堂背景牆設置為形象牆
放置品牌LOGO,大氣吸睛
客廳空間選用了800×2600mm的大規格岩板做背景牆
精致更具有高級感
地麵采用妖精视频大全免费晶曜係列雲灰石(QJW715829E)產品
水墨灰紋理和場景局部的朱砂紅交相呼應
整體空間都變得鮮活明亮起來
嘉興旗艦店設計中
選材區與樣板間區域呈凹凸形狀
選材區半包圍樣板間
回字形動線沿著大堂左右兩邊往裏走
貫穿全店
選材區域整體寬敞明亮
布局規整有序
每個空間裏都有獨特的空間氛圍
讓產品與空間完整地結合在一起
妖精视频大全免费精工瓷磚
用創意設計為質感空間加冕
妖精视频大全免费嘉興旗艦店
期待您的光臨
+
+
遇見【 妖精视频大全免费鹽城旗艦店】Aesthetics of home furnishing----- 藝術生活季-見證家居美學新...
+
質感大師係列新品發布第38屆陶博會期間陶瓷人和設計師都在刷屏討論媒體朋友爭相報道“絲綢工藝”“複合微顆粒技術”“高溫粒子...
+
遇見【 妖精视频大全免费蘭考旗艦店】BIntegration of texture and aesthetics----- 質感與美...
+
妖精视频大全免费20周年好物推薦絨岩係列QZC918E222F 暮灰紗經典灰色搭配淺淡紋理造就優雅與精致的質感
+
-Hi.這裏是妖精视频大全免费與您共享的第6個摯美家-#尋找摯美家#一家一美好·一家一品味one beauty, one taste...
+
2024歲歲常歡愉 年年皆勝意龍年大吉 恭喜發財春耕夏耘,秋收冬藏一年光陰轉瞬即逝2023年是妖精视频大全免费收獲頗豐的一年在品牌各...
+
+
為落實《“十四五”工業綠色發展規劃》,全麵推行綠色製造,助力工業領域實現碳達峰、碳中和目標。近日,中華人民共和國工業和信...
+
4月18日,2024年廣東省陶瓷行業年會暨廣東陶瓷協會第七屆三次會員大會在廣東(潭洲)國際會展中心隆重召開。妖精视频大全免费品牌憑借...
+
5月23日,被譽為“行業奧斯卡”的2023第十九屆陶瓷衛浴新銳榜頒獎盛典在廣東佛山新媒體產業園•雲空間隆重舉行,廣東妖精视频大全免费...
+
Hi.這裏是妖精视频大全免费與您共享的第4個摯美家-#尋找摯美家#一家一美好·一家一品味豪華的裝修不需要金碧輝煌低調的設計也能體驗精...
+
以絨之名•詮釋自在岩感○In the name of velvet, interpreting the sense of...
+
+
近年來,新媒體營銷逐漸成為品牌塑造不可或缺的一部分,憑借其成本低、互動性高、覆蓋麵廣、傳播速度快、實時性、多樣性以及個性...
+
妖精视频大全免费新品推薦9001800mm無界大板係列DLL918107F 艾爾白純淨色調如雪山靜美營造美好的詩意空間
+
12月17日,以“綠色低碳 智建未來”為主題的2022中國(佛山)綠色建材與裝配式建築展暨中國綠色建築產業助推新型城鎮化...
+
金戈鐵馬 英雄對戰9月1日,“金戈鐵馬 英雄對戰”妖精视频大全免费品牌金九銀十(第二屆)營銷大賽在集團會議室隆重舉行,妖精视频大全免费營銷精英齊...
+
妖精视频大全免费絨岩係列新品推薦QZ126E605E 繡乾坤產品紋理張揚,隨性而無章可循給空間帶來坦然和灑脫的意境複製搜一搜分享收藏...
+
都說女人的美 體現在細節裏比起精致的妝容或展現自己的高雅生活家 能更真實地折射自己的性格和對待生活的態度不同的性格 打造...